Accessibility En-Suite
Our customers had a nice en-suite but wanted to change it to be tailored to the husbands requirements after he developed mobility issues. We talked to them intensively and adjusted everything to his needs but also taking into consideration the future. They wanted it to be stylish and not clinical looking.
Before Photos
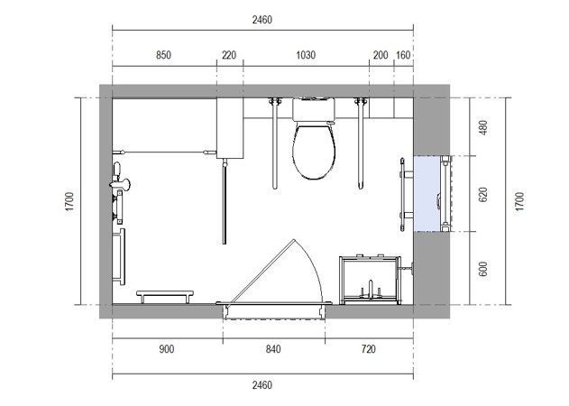
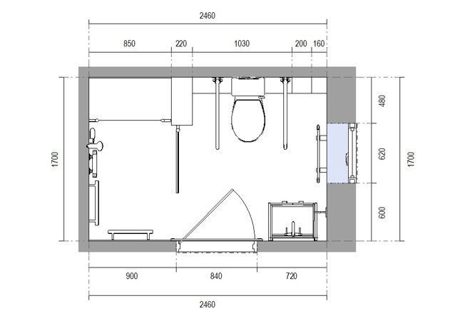
Drawings

2D Plan

3D Drawing - Birdseye View
After Photos











