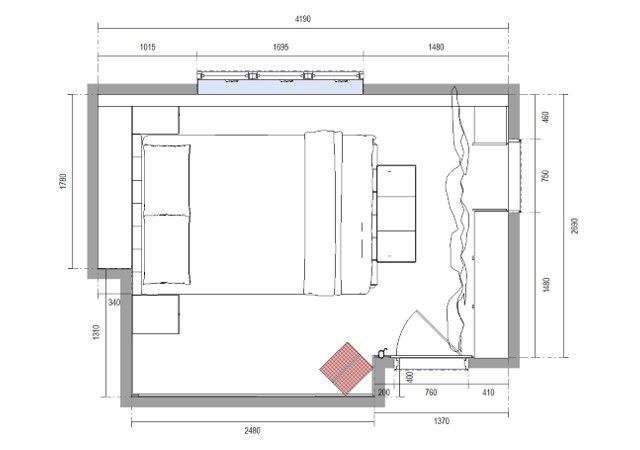
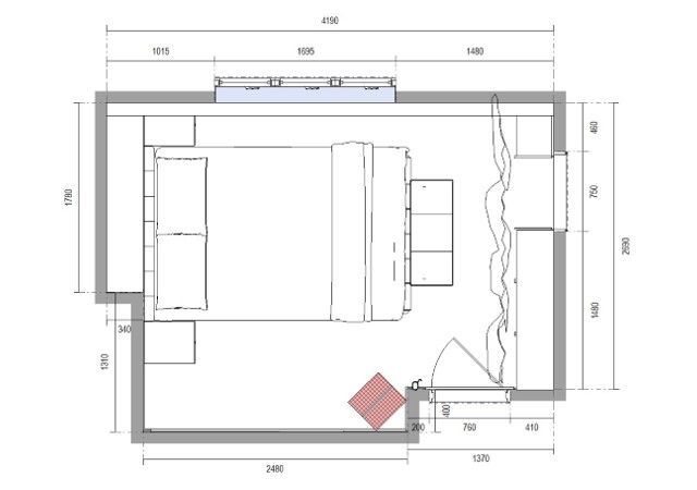
Bedroom
Our customer wanted to see how they could change the layout of their bedroom. They have an odd shaped room with lots of alcoves in it, and had to keep their loft hatch and ladder in mind. They wanted to use their favourite colours green and purple with a bold design. We took this all into consideration and gave them a unique design incorporating a dressing room area and creative storage.






